Nøkkel faktorer
- 1 baderom
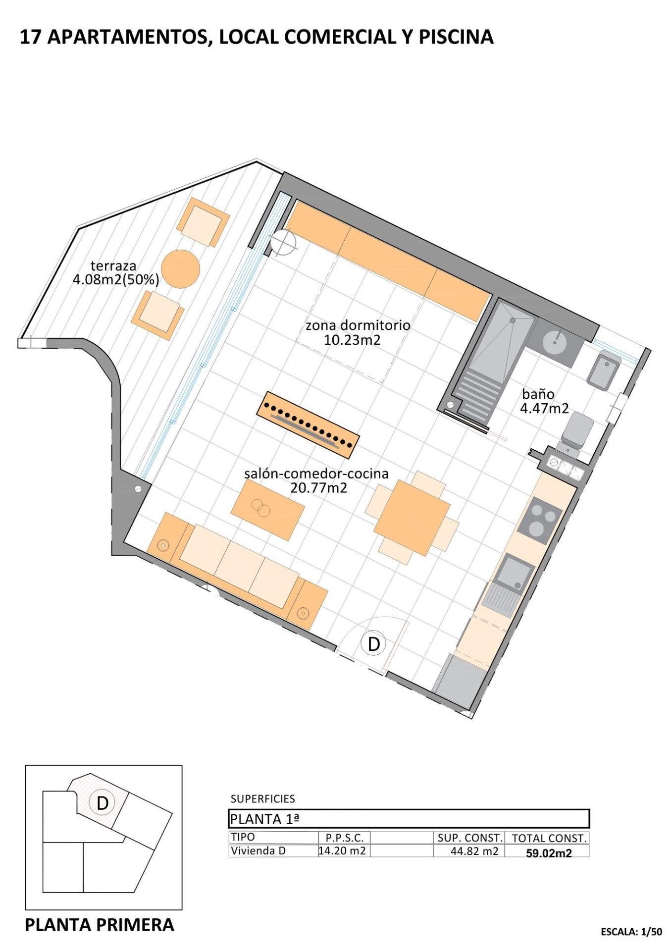
- 44 m2 bygget
- 0 m2 tomt
- Svømmebasseng: Yes
Eiendomsbeskrivelse
Nybyggede turistleiligheter nær stranden i Lo Pagan, San Pedro del PinatarEksklusivt boligområde ved kysten med turistlisensDette nybygde boligkomplekset består av 17 moderne leiligheter med turistlisens, og ligger i Lo Pagan, San Pedro del Pinatar, bare 700 meter fra stranden. Dette prosjektet ligger i et av de mest attraktive områdene i Mar Menor og tilbyr en utmerket mulighet til å nyte middelhavslivet samtidig som man drar nytte av et stort potensial for utleieinvesteringer. Lo Pagan er et veletablert kystområde kjent for sin avslappede atmosfære, naturlige gjørmebad og nærhet til både Mar Menor og Middelhavet.Moderne studioer og leiligheter med ett soveromProsjektet tilbyr romslige studioer på over 45 m2 samt leiligheter med ett soverom, alle designet med tanke på funksjonalitet og komfort. Hver bolig har store terrasser som utvider boarealet utendørs, ideelt for å nyte det milde klimaet hele året. Åpne kjøkken smelter sømløst sammen med lyse oppholdsrom, og skaper innbydende og praktiske interiører. Alle eiendommer har et privat bod, noe som gir ekstra bekvemmelighet for eiere og gjester.Høy kvalitet og fullt utstyrte boligerAlle leilighetene er bygget etter høye kvalitetsstandarder og leveres fullt møblerte og klare til bruk. Badene har innebygde møbler, opplyste speil, elektriske håndklestativ og dusjvegger. Kjøkkenene er fullt utstyrt med moderne hvitevarer og moderne skap. Klimaanlegg med split-enheter er fullt installert, noe som sikrer komfort gjennom alle årstider. Store skyvedører med tre skinner mellom stuen og terrassen gir maksimal åpning, integrerer innendørs og utendørs oppholdsrom og forbedrer naturlig lys.Fellesarealer på taket med basseng og solariumBoligkomplekset har attraktive fellesarealer designet for avslapning og fritid. På taket kan beboerne nyte et felles svømmebasseng og solarium med åpen utsikt, lett tilgjengelig med heis. Dette høytliggende området tilbyr en perfekt setting for å slappe av, sole seg eller sosialisere mens man nyter kystmiljøet.Livet i Lo Pagan og San Pedro del PinatarSan Pedro del Pinatar har en privilegert beliggenhet mellom to hav, noe som gjør det til et populært reisemål for strandelskere og vannsportentusiaster. Området tilbyr marinaer, seilklubber og rolige, grunne farvann som er ideelle for familier. Lo Pagan er spesielt kjent for sine naturlige gjørmebad og sin livlige strandpromenade fylt med restauranter, kafeer og lokale butikker. Byen tilbyr også idrettsanlegg, et innendørs svømmebasseng og aktiviteter året rundt, støttet av et behagelig vinterklima.Viktige avstander til interessante stederStranden i Lo Pagan: 0,7 kmSan Pedro del Pinatar marina og havn: 1,5 kmDos Mares kjøpesenter: 2 kmLo Romero Golf: 10 kmMurcia Corvera flyplass: 35 kmAlicante flyplass: 80 kmInvester eller nyt middelhavslivetKontakt oss i dag for å få mer informasjon eller for å avtale visning av disse nybygde turistlisensierte leilighetene i Lo Pagan, San Pedro del Pinatar, og sikre deg din plass ved sjøen.
Reserve this Property
In order to reserve this property we require a 5000€ deposit to be paid and a Reservation Contract will need to be signed. Once received the property will be taken off the market and the sales process will begin.
Please note the 5000€ will be held in our client holding account until the Vendor has accepted the offer and both parties have signed a Sales Contract. After that time the deposit will be sent to the vendors lawyers and will become the initial payment of the agreed Purchase Price
To pay the deposit securely you can use the PayPal link below. Alternatively, you can contact us and we can organise a card payment or transfer.



















